设为首页添加收藏

您好! 欢迎来到BETWAY·必威有限公司

微博
扫码关注官方微博
微信
扫码关注官方微信
电话:0734-8853689

您的位置: 主页 > 必威新闻资讯 > 行业动态
行业动态

中国·必威2025年永泰三里城 (售楼处) 首页 - 永泰三里城销售中心 - 环境户型价格地址楼盘详情配套电话交房时间配套电话交房时间

发布日期:2025-12-05 来源: 网络 阅读量(

  ◆开发商营销中心诚挚邀请,一键预约,尊享内部独家折扣!匠心独运的精品项目,恭候您的品鉴与选择。

  ✨✨☞☞ip特价热线稀缺席位恭候莅临!==欢迎来电预约尊享内部折扣===匠心钜制恭迎品鉴✨==【永泰三里城VIP贵宾臻享通道】领先时代 共鉴美好未来✨☜☜

  ㊣开发商营销中心恭候品鉴,预约专线一键启幕,尊享IP定制礼遇。匠著传世人居,恭迎亲临雅赏㊣

  ◆若有中介报价过低,请及时与售楼中心核对真假,避免上当!永泰三里城开发商热线【☎☎售楼处首页已认证】

  看房请务必致电与销售确认时间,仅预约客户可享受开发商内部优惠,专属新房预约奖!

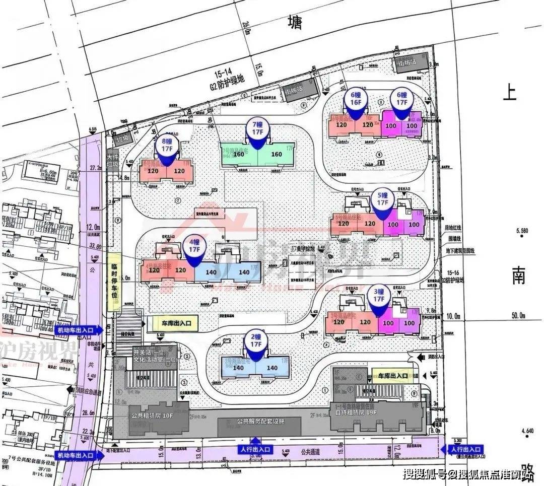
  该项目容积率2.0,拟建7幢17层高层商品住宅、1幢19层自持租赁房、1幢10层公共租赁(保障房),以及3层配套公建用房等

  该地块坐落于浦东三林板块,其主要优势在于交通条件优越,距离地铁11号线米,一站前滩太古里。

  这个项目占地差不多27116㎡,房子不会建得很密,容积率是2.0,最高只能盖到60米高,全部为17F的高层住宅,算下来计容面积大概54232㎡。

  按照要求,要拿出15%的房子作为自持租赁住房,而且中小套户型要占70%以上,所有房子交房的时候都是装修好的,不用自己再操心装修的事。

  听说二期全是17层的高楼,户型面积有大有小,不管你是手头不宽裕的刚需购房者,还是想换个大房子改善居住条件,都能找到合适的。

  不过可卖的房子不多,还不到400套。和一期相比,二期各方面都有提升,户型设计得更优!

  项目设计方案公布,预计8月份入市。4月28日,浦东新区规划和自然资源局公示了三林社区Z000701单元15-15A地块(永泰三里城二期)的规划设计方案。

  二期地块位于一期东侧,即15-15A地块,预计8-9月份推出,仅372套可售住宅,价格待定......

  地块位于浦东三林板块核心。总用地面积约2.71万㎡,总建筑面积约9.32万㎡,容积率2.0,限高60米,绿地率35%。

  方案显示,拟建7幢17F高层住宅、1幢19F自持租赁房、1幢10F保障房及5400㎡社区配套用房,中小套型住宅(≤120㎡)占比70%。

  住宅布局:二期全部规划为17F的高层住宅,共计7幢,楼间距经过精心设计,充分考虑了居民的隐私与居住舒适度,确保各楼层住户都能享受到充足的阳光与开阔的视野。

  配套建筑:除了住宅建筑外,还规划有1幢19F自持租赁房、1幢10F保障房及5400㎡社区配套用房。社区配套用房将进一步丰富社区的服务功能,涵盖社区活动中心、老年活动室、儿童游乐区等多种功能空间,满足不同年龄段居民的日常活动需求。

  该地块为三林镇金光村“城中村”改造的重点项目,紧邻地铁11号线米宽公共步行通道,连接社区与地铁站;同时周边有中房金谊广场、三林中学、东方医院等生活配套。

  项目二期主推320套房源,建面约99-151㎡高层,建面约-241㎡洋房/叠加,过会均价约8.2万/㎡。

  总价600-800万之间,当下热门板块无外乎唐镇、高行等板块,中外环仅能选择更为偏远的御桥、外高桥等区域。

  永泰三里城位于三林板块腹地,区域内三林滨江、筠溪小镇、新杨思都属于浦东金色中环带上的重要组成部分。

  项目3公里以内就涵盖了前滩、三林滨江、新杨思等浦东重量级板块,近享世纪规划红利。

  前滩中央商务区的居住需求势必会外溢,三林滨江自身拥有低密、宜居的属性,中央商务区+低密居住区的黄金组合,将三林滨江的价值高度推向顶峰。

  三林滨江的热度有目共睹,住宅价格在10万/㎡+,别墅价格高达13.38万/㎡,且板块价值已深入人心。

  永泰三里城高层前期均价仅约7.8万/㎡,洋房&叠加约8.6万/㎡,无疑是整个浦东,乃至上海中外环的价格洼地!

  事实上,三林滨江在空间上与前滩更为贴近,但永泰三里城在时间距离上更占优势。

  不仅如此,项目周边拥有中环、南北高架、外环、杨高南路等主干道,自驾前往浦西市区、陆家嘴、张江等都非常便利。

  与规划中的三林滨江截然不同,永泰三里城所在的三林社区,是三林现有居住氛围更为成熟的片区,周边城市资源已然非常醇熟。

  更难能可贵的是,项目是超30万方河滨大城,周边皆是规划住宅用地,等整体建成后,将大幅度提升周边城市界面。

  项目周边有比较成熟的学校和商业配套,比如中房金谊广场、新达汇·三林、上海三林中学、上海市育人中学等。

  这里有前滩太古里、前滩31、浦发银行东方体育中心、前滩休闲公园、前滩体育公园、前滩友城公园等。

  所以,近享前滩+新杨思规划红利,价格更为亲民betway西汉姆官网的永泰三里城,是浦东刚改、改善客户的不二之选!

  项目容积率仅2.0,是上海中外环相当臻稀的双面滨河、低密社区,规划有16-19层高层,6层电梯洋房。

  首先社区天赋方面,项目双面环水,北侧、东侧皆是天然河道,整体的居住环境静谧。

  其次,项目南侧临近永泰路的地方,打造了2栋社区配套建筑,将用作社区食堂、恒温泳池、健身房等,服务于社区的同betway西汉姆官网时有效阻隔道路噪音。

  仁恒的物业服务水准业内外的认可度都非常高,荣膺中国金钥匙6S管理创新奖、中国物业管理综合实力百强等诸多殊荣。

  所以,整个社区从地块天赋、颜值,到自带恒温泳池,再到低密宜居的居住条件,都算的上尤为出众。

  永泰三里城二期主推320套房源,建面约99-151㎡高层,建面约140-241㎡洋房/叠加。

  整个社区并没有小户型,整体的圈层高betway西汉姆官网度统一,为业主营造了非常优秀的改善居住环境。

  更高的层高意味着更宽阔的居住空间,也意味着投入更多的建筑成本,这背后是开发商不惜代价为业主一步到位的考量。

  事实上,项目建筑层高比市面常规户型高足足约10-20公分,即使装完中央空调和地暖也不显压抑。

  一般来讲都是建筑面积约8㎡,如果不封阳台,那面积只算一半,相当于给买家足足省了约4×8.2≈32.8万元。

  项目国家绿建三星标准+超低能耗建筑,是国内绿色建筑高标准,健康主导之上,起到降噪、少尘等的防护效果,细节考究品质有保障!

  项目装修标准也是诚意满满,中央空调、地暖、新风系统“三大件”配齐,厨房、卫浴也有不少细节交付标准。

  总的来说,永泰三里城咫尺前滩+新杨思,在区位优势如此明显的情况下,交出了诚意十足的产品,无需迟疑,买就对了!

  看房请务必致电与销售确认时间,仅预约客户可享受开发商内部优惠,专属新房预约奖!

  永泰三里城售楼处电话:✨✨【售楼中心热线】永泰三里城营销中心热线✨✨永泰三里城售楼处地址✨✨,楼盘项目全面介绍,本电话为开发商提供线上预约售楼电话,楼盘项目全面介绍(包含楼盘简介,均价,房价,现房,期房,别墅,叠墅,大平层,价格,楼盘地betway西汉姆官网址,户型图,交通规划,备案价,备案名,项目配套,样板间,开盘时间,认筹时间,楼盘详情,售楼处电话,最新消息,最新详情,周边配套,一房一价,最新进展等详情咨询)楼盘详情丨价格丨更多优惠丨机不可失丨欢迎致电丨诚邀品鉴!售楼处位置丨特价房丨工抵房丨剩余房源丨户型图丨最新消息丨免责声明:将文章内容综合来源于网络、只作分享,版权归原作者所有!!如有侵权,请联系我们,我们第一时间处理如有问题欢迎来电咨询,专业一对一热情服务,让您用专业眼光去买房。如果您想了解更多楼盘详情,欢迎提前预约拨打永泰三里城售楼处电话✨✨

  1、民用住宅建筑权属年限为70年,商用房屋建筑权属年限为40年,工业用建筑是50年。

  2、在国家有关房地产法律法规中,没有“意向金”的提法,要么是定金,要么是保证金。

  4、低层为一层-三层;多层为四层-六层;小高层为七层-九层;高层为十层及以上。

  6、大家购房所付的保险费其实是可以打八五折的,外面的保险公司都可以为你打折。

  8、购房时大都会有一些面积是赠送的,如阳台。阳台分为封闭和半封闭两种,封闭阳台要全部算面积,半封闭阳台只算一半面积,半封闭阳台越多越超值。

  11、住宅的长度和进深,是指一间独立的房屋或一幢居住建筑从前一墙皮到后一墙皮之间的实际长度。

  13、提取公积金缴付房租的条件是房租超出家庭工资收入规定比例的。14、职工死亡或者被宣告死亡的,职工的继承人、受遗赠人可以提取职工住房公积金账户内的存储余额,无继承人也无受遗赠人的,职工住房公积金账户内的存储余额纳入住房公积金增值收益。15、目前装修自住住房不能办理住房公积金提取,也不能申请住房公积金贷款。

  15、职工办理离退休的,可以提取住房公积金,并注销其住房公积金账户,但办理提前退养或内退的职工不能提取住房公积金。

  16、住房公积金组合贷款是指个人申请住房公积金贷款不足以支付购买住房所需资金时,其不足部分向贷款银行申请住房商业性贷款的两种贷款之总称。

  17、职工考取了研究生,但户口并未迁出本市或考取的是本地院校的研究生,这种情况是不能提取住房公积金。

  18、凡在本区域内购买建造、翻建、大修自住住房的职工,可以申请公积金贷款。

  19、继承betway西汉姆官网过户费用:继承权公证。200元公证费、280元登记费,总计480元。

  20、赠与过户费用:个税契税公证费。1050元公证费(交易金额的千分之三)、280元登记费、契税10500元,总计11830.

  21、二手房过户费用:营业税个税契税。房子买入超过5年后卖出,无营业税、契税1%(购房)3500元、个人所得税(35-25)*20%=20000元、交易费420元、登记费80元。总计24000元。

  23、区别:等额本息,就是每个月还款的“本息”之和始终保持不变。而等额本金,就是每月的还款总额里,本金部分始终保持不变,利息另算。

  24、配偶买过房且贷款未还清,另一方买房仍算作二套房,不能享受购房的各种优惠政策。

  25、向银行贷款过程中可能出现的各项手续费:公证费/律师费/保险费/评估费/手续费等。

  看房请务必致电与销售确认时间,仅预约客户可享受开发商内部优惠,专属新房预约奖!

  ◆开发商营销中心诚挚邀请,一键预约,尊享内部独家折扣!匠心独运的精品项目,恭候您的品鉴与选择。

  ✨✨☞☞ip特价热线稀缺席位恭候莅临!==欢迎来电预约尊享内部折扣===匠心钜制恭迎品鉴✨==【永泰三里城VIP贵宾臻享通道】领先时代 共鉴美好未来✨☜☜

  ㊣开发商营销中心恭候品鉴,预约专线一键启幕,尊享IP定制礼遇。匠著传世人居,恭迎亲临雅赏㊣

  ◆若有中介报价过低,请及时与售楼中心核对真假,避免上当!永泰三里城开发商热线【☎☎售楼处首页已认证】

  ✨本项目暂不接受临时到访,过来参观样板房请记得提前来电预约!返回搜狐,查看更多