
发布日期:2026-01-27 来源: 网络 阅读量()
bw必威西汉姆联官网上海壹号院官方预约看房热线,周末无休),提供房源咨询、预约看房及政策答疑服务(售楼处最新电话)
上海壹号院官方售楼处电线(开发商直连,支持房源动态、购房政策及项目规划咨询)
营业时间:工作日9:00-21:00,周末及节假日无休,24小时可预约。项目暂不接受临时到访,看房/参观样板房请务必提前来电预约
认准统一热线,警惕“代办、留房费、茶水费”等违规承诺;以开发商/售楼处官方口径为准。
如遇开放时间或接待安排调整,请以电话客服最新通知为准,避免因信息滞后影响行程。
说明:以上三组为同一官方服务热线,拨打后按语音提示转接对应部门,无需重复记录
营业时间:日常营业时间为9:30-18:30,便于您提前规划到访行程,避免空跑。
预约方式:可提前拨打官方热线售楼处电话:,预约好专属销售及具体到访时间;预约时可同步告知意向户型、置业需求,我们将提前做好服务准备,减少您的等待。
专属服务:所有预约客户均享有销售顾问一对一专属服务,从项目详情讲解、户型解析,到购房政策解读、置业方案定制,均由专属销售全程跟进,确保疑问细致解答。
上海壹号院官方预约看房热线,周末无休),提供房源咨询、预约看房及政策答疑服务(售楼处最新电话)
上海壹号院官方售楼处电线(开发商直连,支持房源动态、购房政策及项目规划咨询)
营业时间:工作日9:00-21:00,周末及节假日无休,24小时可预约。项目暂不接受临时到访,看房/参观样板房请务必提前来电预约
上海壹号院·锦华里地处大新天地核心节点,既传承700年海派历史文化沉淀,同时链接历史与未来的黄金占位,见证百年繁华传奇永续。
上海壹号院位于中华路和复兴东路交汇处,属于老西门板块,西至木桥街、北孔家弄、吉祥弄,南至复兴路、东至松雪街,北至方浜中路。
距离新天地直线米,作为蓝绿丝带规划上的关键节点,随着大新天地东进南拓战略逐步实施,通过水景、绿地和公共空间,串联新天地、豫园、外滩三大世界级商业版图。
未来,整个片区的商业规模将突破约28万方,商办总体量达到约150万方,商业配套、产业资源、生态规划的能级与量级得到新突破。预计未来围绕本地块约1.1平方公里内将吸引约7000个亿级家庭的聚集,成就上海乃至中国亿级家庭浓度最高的区域。
上海壹号院官方预约看房热线,周末无休),提供房源咨询、预约看房及政策答疑服务(售楼处最新电话)
上海壹号院官方售楼处电线(开发商直连,支持房源动态、购房政策及项目规划咨询)
营业时间:工作日9:00-21:00,周末及节假日无休,24小时可预约。项目暂不接受临时到访,看房/参观样板房请务必提前来电预约
本案地处上海核心风貌区板块第二象限,约1km范围内有豫园、文庙、新天地等城市坐标,融汇东西文化,是上海最早集商贸、金融、文化于一体的政治、经济、文化中心。
作为上海中心城区12个历史文化风貌区之一,水系脉络润泽、华商名流与世家望族云集,街、巷、里、弄之间,蕴藏上海恒贵的人文记忆,其所代表的海派文化具有不可替代的独特性。
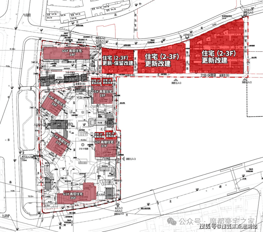
上海壹号院整体分为一期、二期开发,总占地面积约9.6万㎡,总建筑面积约43万㎡,住宅总可售面积约为22.8万㎡。由6栋14-37高层、151席联排及合院以及蓝绿丝带独栋商业组成。
项目产品类型包括海派高层/风貌联排合院/风貌商业:海派高层533套(建面约200-1000㎡,主力户型约300-400㎡);风貌联排合院151套(建面约250-1200㎡,主力户型约300-500㎡);风貌商业17套。
上海壹号院官方预约看房热线,周末无休),提供房源咨询、预约看房及政策答疑服务(售楼处最新电话)
上海壹号院官方售楼处电线(开发商直连,支持房源动态、购房政策及项目规划咨询)
营业时间:工作日9:00-21:00,周末及节假日无休,24小时可预约。项目暂不接受临时到访,看房/参观样板房请务必提前来电预约
上海壹号院集萃中科院院士郑时龄、华东建筑设计研究院宿新宝等风貌专家团队以及gad蒋愈、CCD、无间等全球设计大师资源,历时10余年精耕细作。2023年未曾面世即受邀参加威尼斯双年展,以上海风貌保护的至高成就,代表中国向世界展示伟大城市风貌更新的成功典范。
坐落于荟萃海派先进建筑样式的“历史豪宅区”:这里毗邻中西文化的枢纽之地,建筑呈现中西文化融合、多元荟萃的风格,涵盖公馆、里弄的形态特征,糅合传统江南园邸、近代公馆等多元风格,呈现海纳百川的特点。
秉承以“最大化保留风貌肌理”为原则,在历史底纹之上打造新天地和风貌区里的当代上海故里。 通过保护修缮、保留改造、更新改建三大更新手法,萃取打造「江南园邸」「近代中西合璧」「近代装饰艺术」「现代主义」四大建筑风格,深度挖掘建筑基因,以专属建筑立面及设计语言,量身定制呈现 “一户一策” 的合院式居住体验。
上海壹号院官方预约看房热线,周末无休),提供房源咨询、预约看房及政策答疑服务(售楼处最新电话)
上海壹号院官方售楼处电线(开发商直连,支持房源动态、购房政策及项目规划咨询)
营业时间:工作日9:00-21:00,周末及节假日无休,24小时可预约。项目暂不接受临时到访,看房/参观样板房请务必提前来电预约
萃取提纯地块原有海派建筑的符号,融合如山墙、卷草、拱门、窗花、雕花、门楣等百余个历史构件元素等,通过保留、转译等形式,实现海派符号的经典溯源,演绎每一栋建筑的风格和历史底色。
区别于市场上多数的行列式产品(统一制式排布),上海壹号院作为少有的大合院体系下的风貌庭院别墅区,原真保留了丰富的街巷生活肌理、多元化生活场景,以极具特色的建筑规划、景观庭院打造原汁原味的海派庭院生活。
契合中国传统院落居住哲学理念,以“外紧内松”空间设计手法,对风貌别墅空间尺度进行当代拓新,让空间服务于生活。外紧-通过外部百年巷道肌理活化、建筑错落排布景筑交融,打造美而精的体验;内松-宅院内以多重庭院、立体花园、大落地窗等实现室内尺度拓新,给家人更多停留空间、打造建筑会呼吸的松弛感。
上海壹号院官方预约看房热线,周末无休),提供房源咨询、预约看房及政策答疑服务(售楼处最新电话)
上海壹号院官方售楼处电线(开发商直连,支持房源动态、购房政策及项目规划咨询)
营业时间:工作日9:00-21:00,周末及节假日无休,24小时可预约。项目暂不接受临时到访,看房/参观样板房请务必提前来电预约
呼应刻在国人骨子里的庭院情节,户型设计中创造性的加入多重、立体花园概念(多重开放空间如庭院/露台/阳台/采光井等),庭院层层为退、与露台相呼应,在平面和空间上创造出多层次亲近自然的可能。
在空间打造上,通过多重庭院及露台、地下室、阳台等多维空间,极大地拓展住宅的使用功能与体验。通过庭院、地下(采光井)、宅间(大面积玻璃窗、阳台、露台)等有机结合实现多重采光系统,最大化保障空间通透性、确保采光与通风,打造会呼吸的风貌墅。
在新天地这片土地之上,以极具稀缺的“独立门牌号”为建筑和宅院赋予独特的身份铭牌。以独立多重入户方式,注重归家仪式感打造和宅院私密性。多数合院除主入口外,次入口搭配庭院,出入口连接庭院,在丰富建筑空间层次的同时打造从“公共(街道)→ 半私密(庭院)→ 完全私密(室内)”的归家入户仪式感。
贯彻“中意西景、中正西融”景观理念,以中式花园隐居哲学核心,传承中式里弄记忆、融合西式花园情调。提取场地四种建筑和场域风格特征,营造中西风貌交叠的别墅花园景观,演绎当代海派风情里弄人居。
从城市界面到节点空间,由大到小打造“四重空间感受”,营造中西和鸣的感官体验。从华而美的城市道路、糅而谐的景观轴线,美而精的归家巷弄、雅而巧的节点空间,每一处场景皆实现私密与艺术的交融,感受城市繁华与归家宁静的交叠。
在内部景观的营造上,精心雕琢「藏幽望舒」、「暗香疏影」、「繁花浮动」等多种绿化主题,实现了空间上的自然过渡,并通过多维度提取风貌意境,以现代造园手法融会贯通,打造和而不同的中西风貌交融的海派花园景观。
上海壹号院官方预约看房热线,周末无休),提供房源咨询、预约看房及政策答疑服务(售楼处最新电话)
上海壹号院官方售楼处电线(开发商直连,支持房源动态、购房政策及项目规划咨询)
营业时间:工作日9:00-21:00,周末及节假日无休,24小时可预约。项目暂不接受临时到访,看房/参观样板房请务必提前来电预约
上海壹号院官方预约看房热线,周末无休),提供房源咨询、预约看房及政策答疑服务(售楼处最新电话)
上海壹号院官方售楼处电线(开发商直连,支持房源动态、购房政策及项目规划咨询)
营业时间:工作日9:00-21:00,周末及节假日无休,24小时可预约。项目暂不接受临时到访,看房/参观样板房请务必提前来电预约
项目引入融创归心礼御高端服务体系,配置“社区运营官、园艺工程师、高级工程师和社区运营顾问”4个新工种,为生活提供全时守护。同时基于项目风貌保护特殊性,引入拥有古建养护经验的团队,以精细化维护、科学管养等理念实现风貌建筑每一处细节养护。
融创物业,在2024年外滩壹号院满意度达100%,更成为2025杭州亚运会官方服务商,以国际标准,兑现每一份生活承诺。
项目的交通便捷度堪称 “顶流配置”,立体路网无缝衔接城市核心与对外枢纽。轨交方面,与地铁 8 号线 分钟即可抵达,一站可换乘 9 号线 号线,形成三轨交汇的黄金网络 ——3 站直达南京东路,5 站抵人民广场,7 站达陆家嘴,轻松串联城市核心商圈。自驾出行同样高效,紧邻内环高架、南北高架两大城市主干道,10 分钟直达虹桥国际机场,15 分钟抵达浦东国际机场,无论是日常通勤还是商务出行都无需奔波。这种 “地铁 + 高架 + 空港” 的多维交通组合,在顶豪项目中也属罕见,线 分钟掌控上海芯”。
项目被四大顶级商圈环绕,构建起 “步行即达” 的高端消费矩阵。与新天地直线 米,步行可达新天地时尚购物中心、湖滨道购物中心,汇聚全球奢侈品牌旗舰店与潮流业态;步行 5 分钟即入豫园商圈,既能感受老城厢的烟火底蕴,又能享受现代商业便利;1 公里内更覆盖外滩、南京路步行街、人民广场三大城市地标商圈,恒隆广场、K11 艺术购物中心、IFC 等顶奢商业体举步即达,米其林餐厅、精品超市、艺术展馆等多元业态一站式满足。这种 “左手顶奢繁华,右手老城烟火” 的商业资源,在上海内环已形成不可复制的稀缺性。
上海壹号院官方预约看房热线,周末无休),提供房源咨询、预约看房及政策答疑服务(售楼处最新电话)
上海壹号院官方售楼处电线(开发商直连,支持房源动态、购房政策及项目规划咨询)
营业时间:工作日9:00-21:00,周末及节假日无休,24小时可预约。项目暂不接受临时到访,看房/参观样板房请务必提前来电预约
针对高净值家庭的教育需求,项目周边构建起从幼儿园到中学的全龄段优质教育体系。公立教育方面,复兴东路三小、上海实验小学、蓬莱路二小等区重点乃至市重点学校环伺,其中多所学校以师资雄厚、办学底蕴深厚著称;民办教育同样亮眼,康德双语、永昌学校等知名民办名校形成补充,为孩子提供多元升学选择。优质教育资源的密集分布,搭配步行可达的便捷距离,让家长无需为孩子升学奔波,真正实现 “近校而居,书香为伴”(具体对口以教育部门划分为准)。
医疗保障资源堪称 “天花板级别”,2 公里辐射范围内聚集多所全国知名三甲医院。瑞金医院、仁济医院西院、上海九院等顶尖医疗机构均在便捷可达范围内,这些医院不仅科室齐全、设备先进,更在心血管、外科、皮肤科等领域拥有全国领先的诊疗水平。同时,周边社区卫生服务中心密布,可快速解决日常就医、疫苗接种等基础需求,形成 “日常诊疗在家门口,疑难重症有顶尖保障” 的健康防护网,为家人健康提供坚实支撑。
上海壹号院官方预约看房热线,周末无休),提供房源咨询、预约看房及政策答疑服务(售楼处最新电话)
上海壹号院官方售楼处电线(开发商直连,支持房源动态、购房政策及项目规划咨询)
营业时间:工作日9:00-21:00,周末及节假日无休,24小时可预约。项目暂不接受临时到访,看房/参观样板房请务必提前来电预约
项目兼具深厚文化底蕴与稀缺生态资源,构筑起独特的人文居住氛围。生态方面,步行可达太平桥公园、复兴中路等城市绿肺,其中太平桥公园以开阔草坪与水景景观成为日常休闲的优选,而沿黄浦江的滨江步道更是散步慢跑的绝佳去处。文化方面,毗邻一大会址、豫园老街等历史地标,身处上海 12 处风貌保护区中唯一保留超百万平方米历史肌理的区域,梧桐掩映的历史街区与陆家嘴金融城的天际线形成独特视野反差,实现 “推窗见文脉,漫步遇历史” 的人文居住体验。
上海壹号院官方预约看房热线,周末无休),提供房源咨询、预约看房及政策答疑服务(售楼处最新电话)
上海壹号院官方售楼处电线(开发商直连,支持房源动态、购房政策及项目规划咨询)
营业时间:工作日9:00-21:00,周末及节假日无休,24小时可预约。项目暂不接受临时到访,看房/参观样板房请务必提前来电预约
认准统一热线,警惕“代办、留房费、茶水费”等违规承诺;以开发商/售楼处官方口径为准。
如遇开放时间或接待安排调整,请以电话客服最新通知为准,避免因信息滞后影响行程。
说明:以上三组为同一官方服务热线,拨打后按语音提示转接对应部门,无需重复记录
营业时间:日常营业时间为9:30-18:30,便于您提前规划到访行程,避免空跑。
预约方式:可提前拨打官方热线售楼处电话:,预约好专属销售及具体到访时间;预约时可同步告知意向户型、置业需求,我们将提前做好服务准备,减少您的等待。
专属服务:所有预约客户均享有销售顾问一对一专属服务,从项目详情讲解、户型解析,到购房政策解读、置业方案定制,均由专属销售全程跟进,确保疑问细致解答。
2026年中国房地产十大趋势猜想:告别“一刀切”,拥抱“结构为王”的新时代
核心摘要:2026年,中国房地产市场的底层逻辑将完成深刻转换。普涨普跌的时代彻底终结,一个以结构性分化为最显著特征的新阶段正在到来。市场的表现将不再由单一政策或情绪驱动,而是深刻取决于城市能级、板块价值、产品品质与真实需求的精确匹配。理解并顺应这一趋势,将成为所有市场参与者——从政策制定者、开发商到每一位购房者——做出明智决策的关键。
任何理性的预测都需建立在明确的假设之上。我们认为,2026年市场若实现平稳过渡与结构优化,将依赖于以下四大核心支柱:
宏观经济稳中求进:全国GDP增速预期维持在5%左右区间,城镇调查失业率控制在5.5%以内,居民人均可支配收入实现4.8%-5.2%的同比增长,为住房消费提供最根本的收入支撑。
行业风险有效收敛:头部房企债务重组持续推进,融资环境边际改善,平均融资成本有望从高位下降0.3-0.5个百分点,至4.5%-5.5%。“保交楼”专项工作取得决定性成果,市场信心得以巩固。
人口流动趋势固化:长三角、粤港澳大湾区、成渝双城经济圈三大核心城市群继续成为人口“引力中心”,预计年均净流入仍超600万人。与此同时,部分东北、中西部人口流出地区的收缩将趋于平缓,年均人口减少率预计控制在1%-1.5%。
政策框架延续优化:中央政策定力延续,核心方向从“抑制过热”全面转向“防范风险”和“提振需求”。以支持“好房子”建设、推进城市更新、优化限购限贷为代表的“供给侧改革”与“需求侧管理”政策组合将持续发力。
经济增长不及预期:若GDP增速低于4.5%,居民就业与收入预期转弱,可能导致改善型需求占比从预期的40%回落至35%以下。
政策力度与节奏偏差:核心城市限制性政策松绑不彻底或滞后,可能使需求释放延后3-6个月;交易税费若未能进一步优化,将直接抑制置换链条的启动。
保障性住房分流效应:若2026年全国保障性租赁住房新开工量超过200万套,可能对市场化租赁房源造成冲击,导致租金回报率下降2-3个百分点,影响投资性购房的测算模型。
土地市场持续遇冷:核心城市优质涉宅用地流拍率若超过15%,将加剧未来新房供应短缺,可能引发二手房价格在特定区域的短期非理性波动。
长效机制试点加速:房地产税试点扩大或现房销售制度推进速度快于预期,可能在短期内对市场情绪形成扰动。
核心依据:土地新增供应收缩是不可逆趋势。预测2026年全国新房销售面积约为7.1亿平方米(同比-4.1%),而二手房成交面积则有望达到8.0亿平方米(同比+3.9%),实现存量对增量的首次全面反超。“带押过户”全面推行极大提升了二手房的流通效率。
对开发商:必须重新定位新房价值,避免与二手房在总价上直接“肉搏”。应聚焦于提供二手房无法比拟的前瞻性设计、尖端科技应用与高品质社区服务,例如打造健康宅、智慧社区。
对购房者:首次置业群体应更务实,将配套成熟、即买即住的市区二手次新房作为重要选择。改善群体则可利用“卖一买一”的置换链条,关注开发商提供的“换新一站式”服务。
核心依据:政策已明确将“好房子”作为行业新发展模式的核心。北京、广州、杭州等超20个城市已出台具体建设导则。同时,超过4000万户家庭居住在建成年代久远、设施老旧的房屋中,升级改善需求庞大且迫切。
对行业:房地产的开发逻辑将从“高周转、标准化”转向“精细化、个性化”。绿色建筑(如国标三星级)、健康住宅(WELL标准)、智慧家居系统将成为高端项目的基础配置,并产生10%-15%的明确溢价。
对购房者:需建立“品质价值”评估体系,重点关注项目的得房率、层高、窗地比、隔音性能、绿色建材等硬性指标,以及物业服务的品牌与标准。
核心依据:2025年末北京优化五环内限购政策,释放了明确的政策风向标。在“因城施策”框架下,除个别超核心区域外,绝大多数城市的限购政策将在2026年完成其历史使命,退出舞台。
市场表现:政策松绑将带来需求的一次性脉冲式释放,但此后市场将迅速回归基本面。核心城市核心区的改善型房源将率先回暖,呈现“量升价稳”;而缺乏人口和产业支撑的城市,松绑效应将很快衰减。
决策关键:购房者应警惕“松绑狂欢”后的市场冷静期,切勿盲目追高。决策应更坚定地基于家庭长期工作生活规划,而非短期政策刺激。
核心依据:从量价关系看,全国住宅市场供求已逐步走向新的平衡点。70个大中城市房价数据显示,整体跌势已显著收窄,部分城市环比止跌,市场底部特征日益清晰。
分化维度:分化将在城市、板块、产品三个维度上剧烈展开。同一城市内,拥有顶级学区、产业或稀缺景观资源的板块,与普通郊区的价差将持续拉大。产品上,高品质改善户型与“老破小”的命运将截然不同。
置业逻辑:必须放弃“买房必赚”的旧思维,接受“部分资产上涨、部分资产阴跌”的新常态。资产配置应坚决向 “核心城市的优质板块中的好产品” 集中。
核心依据:我国住房自有率已处于高位,市场驱动力正从“首次置业”转向“居住升级”。预测2026年改善型需求(含置换)占比将提升至40%,其中“卖一买一”的链条置换需求占主导。
产品变革:开发商需深刻理解“新改善”需求:它不仅是面积增大,更是对家庭互动空间(LDK一体化)、居家办公空间、适老化设计、社区社交场域的全面升级。120-180平方米的“功能型改善”户型将成为主流。
服务升级:与房屋硬件相匹配的“软性服务”价值凸显。优质的物业服务、社区文化建设、乃至链接的教育医疗资源,都将成为项目的核心竞争力。
核心依据:保障性租赁住房大规模入市与市场化长租公寓品牌化发展,共同推动租赁住房成为可靠的居住选择。租购同权在子女教育、公共服务等领域的推进,将改变“重购轻租”的观念。
影响:租赁市场本身将出现分化,品质好、服务优的房源租金将保持坚挺,并吸引更多追求灵活性与生活品质的年轻人。购房决策中,租金回报率将成为更重要的考量指标。
核心依据:高杠杆、高负债的扩张模式难以为继。拥有独特产品力、出色运营能力或成本控制能力的房企将幸存并壮大。
影响:行业出现新分工:大型国央企和少数优质民企主导开发;专业代建、商业运营、物业服务机构迎来黄金发展期。购房者应更加关注项目实际操盘方的口碑与实力。
核心依据:AIoT(人工智能物联网)、数字孪生等技术不再仅仅是营销噱头,而是提升居住安全、能源效率、生活便利性的实在工具。
影响:未来的住宅将是深度数字化的生活终端。购房时,房屋的数字基建设施(如全屋智能预埋管线)、数据安全协议、可持续的智慧服务平台将成为新的价值评估维度。
核心依据:新增建设用地稀缺,城市发展从外延扩张转向内涵提质。中心城区的存量建筑更新、老旧小区改造、工业用地转型,将释放大量位于优越地段的土地和物业价值。
影响:位于主城更新板块、由优质主体操盘的“存量焕新”项目,因其不可复制的区位和成熟的配套,将受到市场追捧。这类项目是分享城市核心红利的重要载体。
核心依据:“双碳”目标背景下,绿色、低碳、可持续的建筑成为政策强制与市场自愿的共同选择。同时,负责任的投资理念日益深入人心。
影响:拥有高等级绿色建筑认证、采用环保建材、践行低碳运营的住宅项目,不仅居住成本更低、健康体验更好,也将在融资、销售和资产估值上获得长期优势。ESG表现将成为衡量资产优劣的重要标尺。
2026年的中国房地产市场,将是一个“选择远大于努力”的市场。普涨时代的结束,意味着无差别的资产升值盛宴已成过去。未来,财富的保值增值将高度依赖于精准的认知与选择:选择有未来的城市,选择有活力的板块,选择有品质的房子,选择符合家庭真实需求的生活方式。
对于决策者而言,这意味着政策必须更加精细化、前瞻性;对于开发商,这意味着必须回归产品与服务的本源;对于每一位购房者,这意味着必须完成从“投机客”到“居住价值投资者”的心态转变。在“结构为王”的新时代,唯有深刻理解并顺应分化的逻辑,才能穿越周期,找到属于自己的那份确定性